A Grand Porch Renovation
Our Alpharetta clients had a beautiful pool and an attractive back porch. But the porch and an additional small deck left a lot to be desired. They wanted to expand the porch to make room for an outdoor fireplace, a TV lounge and a dining area. In other words, they were ready for a grand porch renovation.
In addition, an important part of the this grand porch renovation was circulation. We added a statement staircase that connects the porch to the yard and pool. And we took over the small separate deck with an outdoor kitchen, adding a walkway deck between it and the back porch.

Back Porch Before
The house had a lovely back porch, but it wasn’t functioning very well and was disjointed. For example, to the left there was a smaller deck with steps that led down to the pool. But in spite of being very close to the porch, the two were not connected. The porch itself had a second set of steps down to the pool, which was odd.

Back Porch After
It wouldn’t be a grand porch renovation without a grand staircase! We removed the two existing staircases and replaced them with a generously wide staircase. This was the biggest architectural change to the back of the house. We were able to preserve the existing porch roof.
We also replaced the deck and some of the structure beneath. There are new brick columns that match the new outdoor fireplace, seen on the left corner of the porch. The railings are updated as well. To the left, you can see a new walkway deck that connects to the small deck off the left side of the house.

The Grand Staircase
Here is a better look at the new staircase. It creates a sense of graciousness and symmetry to the architecture. It also improved the flow from the porch down to the yard. We added stone steps that lead directly onto the lawn.

The table on the right sits in part of this new extension of the pool surround, with the path that leads to the staircase beyond it.

Separate Deck Before
Before, there was a small separate deck off the great room that had a set of stairs down to the pool. This deck was not large enough for much more than a grill and a small table. And it was completely disconnected from the back porch.
The circulation was one of the biggest issues on the project. To get from the small deck to the back porch, the homeowners would have to go back into the house, walk through some rooms and then out a door that led to the back porch. Or down the steps to the pool, onto the pool surround and up the stairs to the back porch.
Also, when the homeowners used either set of these stairs, they would have to walk around the pool to get to the rest of the backyard. Our plan was to improve the flow from inside to out, from the back porch to the deck and from the deck to the backyard. 
Separate Deck After
An important part of the design was connecting the small deck to the back porch. The deck now wraps around and connects to the back porch. This part of the renovation made room for an outdoor kitchen on the deck.
This photo also shows the new railings, which are in keeping with the home’s architecture.

Connection To Walkway Before
With the other staircases gone and the new grand staircase built, we needed to connect the grand staircase to the pool area.

Connection To the Walkway After
We also created a strong connection between the staircase and the pool, as well as steps down into the yard. This new stone walkway is an extension of the pool surround, and blends in seamlessly with what was already there.

Back Porch Fireplace
The heart of the refurbished and expanded back porch is this full wood-burning chimney. It presented many engineering challenges along the way, but the results were well-worth it! The fireplace anchors one corner without throwing off the symmetry of the grand staircase. It also leaves expansive views from the porch to the yard open.

The view of the fireplace can be enjoyed from across the long deck, including this dining area and the lounge area beyond it in the foreground.
The bench on the right side marks the beginning of the new walkway deck that connects to the outdoor kitchen deck.

Porch Lounge
This end of the porch contains a conversation and TV lounge.

The TV is tucked up on one side of the porch so as not to dominate it. There is also an audio system out here.

Walkway Porch
By rebuilding the existing separate deck and connecting it to the back porch, we created much better circulation through these outdoor rooms.

The deck has a great grilling station on one side, which includes a gas grill as well as a Big Green Egg. There’s plenty of counter space for prep and lots of storage for grilling tools and platters.

Across from the grilling station there is an outdoor fridge, separate burners and additional storage. This countertop provides a nice serving area. The family and their guests can make up a plate, walk across the walkway deck and eat in the dining area on the porch.

Floor Plan Before
The former staircases are marked in red on the left side of this plan. You can also see the small separate deck on the left.

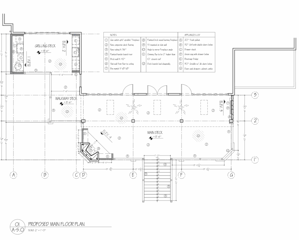
Floor Plan After
Here you can see the walkway deck connecting the back porch to the grilling deck on the left. This plan also shows the expanded depth of the decking past the porch roof, the chimney in the bottom left corner and the grand staircase.

We hope you’ve enjoyed checking out this grand porch renovation. If you’re starting to think about improving your outdoor or indoor spaces, please click on the link at the bottom of this post to schedule a free design consultation and get the design build process started.
If you enjoyed this story, here are a few more links we think you’ll enjoy:
New Covered Porch With Outdoor Kitchen and Lounge
How To Plan a Fabulous Outdoor Kitchen
For more inspiration, check us out on Instagram


